Przestronne 3M , super cena na m2, kominek !

lokalizacja: Warszawa, płk. Stanisława Dąbka

785 000,00 PLN

10 487,64 PLN

Opis nieruchomości

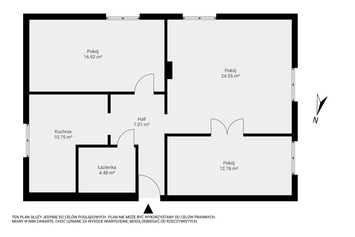
Do sprzedaży 3 pokojowe, przestronne mieszkanie w cichej i spokojnej części Ursusa.

Mieszkanie o powierzchni 74.9m2 z niewielką piwnicą.
Mieszkanie składa się z przestronnego i jasnego salonu, oddzielnej kuchni , dwóch sypialni , łazienki oraz holu.

Mieszkanie jest zadbane , drewniana podłoga w dobrym stanie
W salonie klimatyczny kominek. 

Przy budynku nie ma problemu ze znalezieniem miejsc postojowych.

Cicha i spokojna okolica z Parkiem Czechowickim i stawem.

Blok jest z 1960 roku natomiast w 1995 roku zostało dobudowane 3 piętro z przedmiotowym mieszkaniem.

Bardzo dobra komunikacja i łatwy dojazd do centrum Warszawy.
Zaledwie 5 min drogi  od mieszkania znajduje się stacja Warszawa Ursus która zapewnia bezproblemowy dojazd SKM i KM, jak i również liczne przystanki autobusowe: Plac Tysiąclecia, Sosnowskiego i PKP Ursus co zapewni swobodną komunikacje w dowolne miejsce Warszawy.
W okolicy dobrze rozwinięta infrastruktura, place zabaw, szkoły  oraz liczne sklepy i lokale gastronomiczne.

Odrębna własność lokalu mieszkalnego , czysta księga wieczysta.
Obok mieszkania przestronna suszarnia do dyspozycji mieszkańców. 
Można posiłkować się kredytem mieszkaniowym.

Mieszkanie dostępne do wprowadzenia od zaraz.

Oferta dostępna tylko w naszym biurze.
Serdecznie zapraszam do kontaktu i na prezentację nieruchomości

Kontakt do opiekuna:

Manzil Sp. z o.o.

Dariusz Mrowiński
Nieprawidłowy adres E-mail
Mapa

Strona korzysta z plików cookie w celu realizacji usług zgodnie z Polityką prywatności. Możesz określić warunki przechowywania lub dostępu do cookie w Twojej przeglądarce.